












Biscuit
2024
Longfellow, Minneapolis
Built By: Walden Construction
Efficiency, meet lovely.
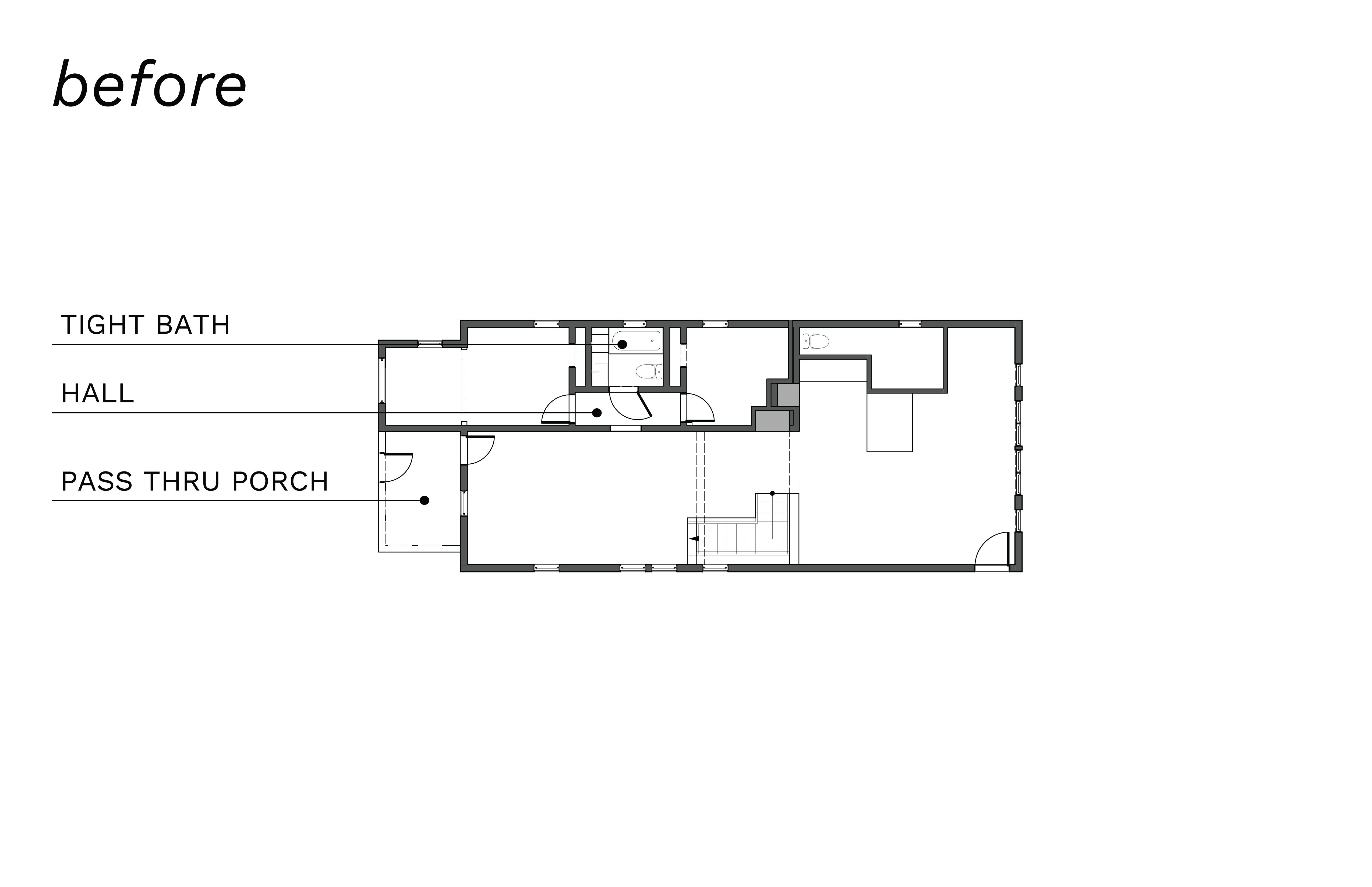
Through a pragmatic elimination of a hallway, this young family gained a generous bathroom and new primary closet. The project also involved converting their front porch into an office separated by a sliding partition. Even the nursery received a new doorway, new wallpaper, and artwork. In all, a thoughtful and meaningful reshuffle for everyone in this growing household.
The updated bathroom addressed a cramped original layout with new bath fixtures that eliminated old plumbing leaks. The wall mount faucet and floating sink and vanity provide an elegant look especially paired with the calming, quiet tiled space and brass hardware. The tile is an almond finish, running bond with bull nosing that complicated the install but simplified the overall look.




